JB HOUSE
Cena 890 000 zł brutto
powierzchnia użytkowa łącznie – 157,97 m2
powierzchnia po podłogach – 181,7 m2
- Dom pasywny
- Technologia IZODOM
- Nowoczesny układ
- Instalacje premium


W CENIE
SZCZEGÓŁY
– ściany zewnętrzne w technologii Izodom2000 o grubości 45 cm (IZOPassive). O parametrze U=0,11 w/m2 stworzonym do budynków pasywnych.
– Do 80% oszczędności na ogrzewaniu
– Ściany wewnętrze wykonane z gazobetonu o grubości 24 i 12 cm.
– Budynek o wymiarach 9m x 14,45m
– Powierzchnia zabudowy 130,5m2
– Powierzchnia parteru 100,65m2
– Powierzchnia użytkowa piętra 57,32m2
– Powierzchnia użytkowa łącznie – 157,97m2
– Powierzchnia po podłogach – 181,7m2
– Kąt nachylenia dachu – 35*
– Wysokość budynku 7,55 m
– Poddasze wykończone płytami GK żaroodpornymi
– Trzyszybowe okna połaciowe FAKRO
– Na parterze: salon z aneksem kuchennym i spiżarnią, 1 pokój z dużą garderobą, łazienka, wiatrołap, garaż, pralnia
– Na poddaszu: 3 pokoje, łazienka oraz antresola
– Ciepła płyta fundamentowa w otulinie 15 cm styroduru
– Ogrzewanie podłogowe niskotemperaturowe w całym budynku
– Pompa ciepła powietrze woda FEROLLI OMNIMA ST z wbudowanym zasobnikiem 180 L
– System wentylacji mechanicznej z odzyskiem ciepła (rekuperacja) marki VALLOX
– Stolarka okienna trzyszybowa w kolorze zewnętrznym antracytowym PCV z przesuwnym oknem HS
– Strop VECTOR
– Schody żelbetowe
– Instalacja elektryczna
– Instalacja hydrauliczna
– Klimatyzacja w otwartej części salonu
– Instalacja teletechniczna
– Tynki gipsowe
– Elewacja
– Wysokiej klasy pokrycie dachowe o unikalnym wyglądzie firmy Ruukki Classic M z mikroprofilowaniem w kolorze czarnym
– Elewacja pokryta tynkiem silikonowym marki Atlas
– Izolacja dachu pianą pur o gęstości 10kg/m3 o grubości 30 cm
Oferta
Pakiety dodatkowe
Fotowoltaika
6,23 z bankiem energii 5 kwp
34 560 brutto
Możliwość uzyskania 50% dofinansowania, w którym pomagamy.
Żaluzje fasadowe
30 000 zł brutto
Rolety zewnętrzne
22 000 zł brutto
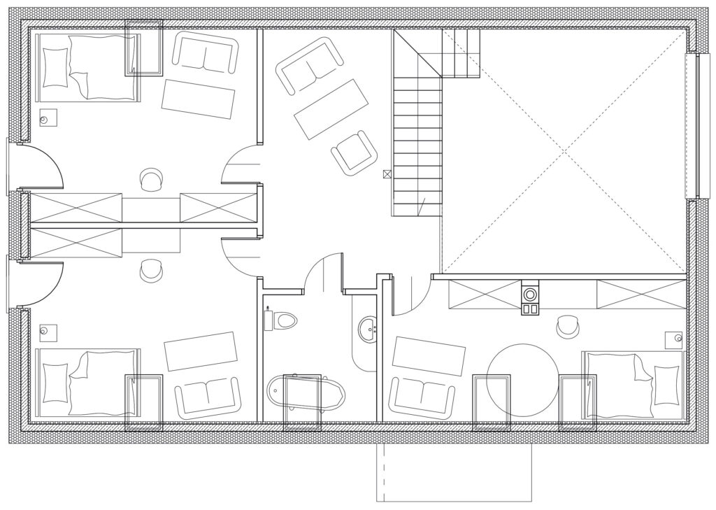
RZUTY PROJEKTU
UKŁAD POMIESZCZEŃ



Zestawienie powierzchni
| Nazwa pomieszczenia | Powierzchnia (m2) |
| Wiatrołap | 4,94 |
| Salon + jadalnia | 30,55 |
| Kuchnia | 10,54 |
| Komunikacja | 2,06 |
| Łazienka | 7,29 |
| Pokój | 12,51 |
| Garderoba | 6,66 |
| Pomieszczenie gospodarcze | 4,50 |
| Garaż | 21,60 |



Zestawienie powierzchni
| Nazwa pomieszczenia | Powierzchnia (m2) (PU/PC) |
| Antresola | 19,41 |
| Łazienka | 3,05/6,16 |
| Pokój | 12,50/18,67 |
| Pokój | 12,50/18,67 |
| Pokój | 9,86/18,14 |
Technologia budowy
IZODOM
Elementy ścienne IZODOM to nowoczesne, energooszczędne rozwiązanie, które gwarantuje wyjątkową trwałość i komfort cieplny budynków. Dzięki przemyślanej konstrukcji i zastosowaniu wysokiej jakości materiałów, elementy te sprawdzają się zarówno w budynkach mieszkalnych, jak i użytkowych, spełniając jednocześnie wymogi efektywności energetycznej oraz nowoczesnych standardów budowlanych.
Najważniejsze cechy i zalety elementów ściennych IZODOM:
- Eliminacja mostków termicznych – System IZOClick® umożliwia montaż bez zaprawy, dzięki czemu uzyskujemy ciągłość izolacji i eliminujemy mostki termiczne, co przekłada się na niższe straty ciepła i wyższy komfort cieplny.
- Trwała, monolityczna konstrukcja – Wypełnienie betonem sprawia, że ściany są niezwykle wytrzymałe i tworzą stabilną, jednolitą konstrukcję, która zapewnia długowieczność budynku.
- Efektywność energetyczna – Współczynnik przenikania ciepła na poziomie 0,11 W/m²K pozwala na znaczne oszczędności na ogrzewaniu i chłodzeniu, czyniąc budynki bardziej przyjaznymi dla środowiska.
Elementy ścienne IZODOM to połączenie innowacyjnej technologii i prostoty montażu, dzięki którym możliwe jest stworzenie energooszczędnych, solidnych i komfortowych budynków, spełniających nawet najwyższe standardy budowlane.


Technologia budowy
Szalunek tracony ICF
Szalunek tracony popularnie zwana ICF najczęściej wykorzystuje dwa dobrze znane na rynku materiały: styropian i beton. Styropian jest znany już od lat 50tych ubiegłego wieku, obecnie powszechnie stosowany materiał izolacyjny na naszym rynku. Natomiast, beton jest jednym z najbardziej powszechnych materiałów budowlanych we współczesnym budownictwie.
Technologia traconego szalunku ta polega na zastosowaniu zestawu pustych w środku bloczków z tworzywa izolacyjnego. Elementy szalunkowe, składa się ze sobą tak, jak klocki, budując wszystkie ściany, kształtując jednocześnie otwory drzwiowe i okienne. Po zalaniu betonem stają się integralną częścią budynku.






















